√画像をダウンロード 屋外手すり高さ 337103-屋外手すり高さ
屋外用手すり(住宅用) アーキレール スクエアなフォルムと多彩なカラーリングが洗練されたモダン住宅をはじめ、さまざまな住宅に調和します。 機能 アルミタイプ(3色) マテリアルタイプ(4色) 形状 フラット;屋外玄関用アプローチ手すり高さ角度調整タイプ AP70 0件の商品レビュー 投稿する 価格情報 通常販売価格 (税込) 49,971 円 送料 東京都は 送料無料 ※条件により送料が異なる場合があります ボーナス等 1% 獲得 499ポイント (1%) ログインすると獲得できます。 あなたはまだYahoo(2)屋外階段で、パイプ等の軽微なものは、建築物の屋上部分の手すり部分のみ建築物の 高さに算入しない。 (3)天空率の適用の場合は、屋上部分も高さに算入する。 表:手すり等の斜線制限における取扱いについて バルコニー手 屋外階段(パイプ等軽微なもの) 屋上手すり すり 屋外
屋外玄関用アプローチ手すり高さ角度調整タイプ Ap 71 埋込式 En Wb08u Webショップ Takigawa 通販 Yahoo ショッピング
屋外手すり高さ
屋外手すり高さ-スキップフロアの階段にも手すりは必要か? a1.階段の高さが1m超なら必要です。逆に1m以下なら法規上は必要ありません。 q2階段の手すりの高さは決まっている? a2建築基準法には規定がありません。ハートビル法などでは「段鼻から75~80cm」が望ましいとしています。 Q3.手すり壁でも玄関の階段の2段の段差は高さがそろっておらず、引っかかりやすい階段になっていました。手すりを取り付けたことで、引っかかっても転倒するのを防ぎます。 ~お客様の声~ 段差がある玄関の手すりを頑丈に取り付けていただき、安心して玄関の上り下りができるようになった。 工 期 2日



手すりag 屋外用 住宅改修用品 介護用品 設備 パナソニックのエイジフリー Panasonic
支柱(高さ調節機構なし)を地面に取り付ける場合には、手すりの高さにあわせて支柱 の下端部を切断するか、埋め込む深さを深くしてください。 支柱(高さ調節機構なし)は取り付け後に支柱の高さを調節できません。 アンカー固定の場合、 地面がコンクリートであること、コンクリートの厚さ手すり 屋外手摺のサポートレールシリーズは、バリアフリーに対応した公共向けの手すりです。 サポートレールUD サポートレール1型~3型 サポートレールFA型 高さの異なる手すりが2段付いているタイプで、低い位置の手すりは子供や車椅子での使用の際に便利です。2段手すりがあれば 子供から大人、車椅子での使用が可能なので、将来に備えて設置するのにも最適 です。 材質は滑りにくくて握りやすいものを。
構成材及び手すり構成材」がある。この規格は低層住宅の屋外に使用するバルコニー 構成材、及び手すり構成材について規定されている。 この規格では、材料、設置方法、高さによる手すりの種類、バルコニー及び手すり の性能、構造、材料、試験方法、表示、取扱上の注意事項等が定められ手すりAG<屋外用> 手すりAG<屋外用> 商品一覧表 施工説明書(2476kb) 品名・品番 価格 その他;手すりにつかまりながら移動すると安心 移動が多い廊下や階段を、手すりがサポート フリースタイル手すり つたい歩きができるので安心。 カタログを見る 2階にも気軽に行ける。 段差がある玄関アプローチを手すりがサポート。 住宅用屋外手すり
屋外手すりの支柱って同じ高さにすれば水平でしょ?ブラケットによって変わるのよ! 年6月4日 Cuore Works 手すり屋さんのブログ 屋外手すり 支柱を土に埋めたい 年3月23日 Cuore Works 手すり屋さんのブログ 手すりの補強板ってどんな? 階段の手すり:屋内階段の内回りには縦手すり本体00 valtl0 希望小売価格: 13,750円(税抜12,500円) jan 材質 オレフィン系樹脂+アルミ カラー ダークブラウン(br) 本体4000 valtl400 希望小売価格: 25,850円(税抜23,500円) jan通風が確保できない手すりは、建築物の高さに算入する。 3 屋外階段に設けるパイプ手すりの取扱い ・日照や通風の確保ができる縦格子のパイプ手すりで、令第2 条第1 項第6 号ハ に規定されている「屋上突出物」に該当するもの以外は、全ての高さ制限の



手すり取付けの基礎知識 その2 輸入 屋根材 金物資材販売 北海道 帯広



屋外用手すりの工事ヒント9選 おすすめ高さ 玄関や階段の施工例がいっぱい
屋外階段の手摺について 施行令 第126条に 「屋上広場又は2階以上のバルコニーその他これに類するものの周囲には、安全上必要な高さが11m以上の手摺を設けなければならない」とありますが、屋外階段の外部側の手摺(又は壁)の高さも11m以上にしないと 先ほどの手すりの高さの話にもありましたが、 手すりの設置方法や高さについて建築基準法では定めはありません。 よって、設計者が常識の範囲内で計画をしてもokという事です。 手すりの法文の趣旨をよく理解し、常識な設計を考える事が大切です。花壇の仕切りにも、階段の手すりにもおしゃれなアプローチ 。屋外 階段 手すり 実用性も兼ねた パークフェンス ストレート 設置高さ 80cm アプローチ 仕切り スロープ 段差 坂道 安全 補助 公園 花壇 手摺 玄関 入り口 介護 リフォーム 送料無料



手すりag 屋外用 住宅改修用品 介護用品 設備 パナソニックのエイジフリー Panasonic



屋外用歩行補助手すり サポートレールシリーズ に新仕様の端部納まりを追加 Toex 株式会社lixil
手すりの高さは80cm前後を目安に本人の使いやすい位置に,握りやすい太さと形状を考えて取り付けましょう。 手すりをつける位置・形状を考えて,壁の補強をしておきましょう。 手すりを取り付ける前にチェックしておきましょう どんな生活動作が手すりを必要としているか;使う方の体型や設置場所に応じて支柱の高さの変更ができます(65cm~90cm) 屋外でも安心の耐久性と環境に配慮した充実仕様 安全に関する注意 手すりAG 手すり 屋外 支柱 積水樹脂 アプローチEレール 支柱(埋込式) AEシチュウウメコミ ステンカラー色 ジュールプラス楽天市場店 8,0円 7 位 両手すり付きアルミステップ アルミステップ ステップ 手すり付き アルミ 両手すり付き(代引不可)送料無料 リコメン堂生活館 16,280円 8 位



バルコニーにかかる建築基準法の制限 手すり高さ 屋根の防火性能 確認申請ナビ



交換無料 楽天市場 代引き不可 手すりag 屋外用 支柱ベースプレート式コーナージョイント型 カバー付 Valtpbpf25c パナソニック エイジフリーライフテック 介護 手すり 手すり 屋外 手すり 介護 介護用品 介護用品専門店 まごころショップ 高速配送 Www
金属鉄 階段手すり 安全滑り止 浴室トイレ階段屋内屋外 玄関台手摺上がりション レール 階段、屋外の階段、屋外の階段のバニズムの手すりの安全サポート棒 屋外、白い金属錬鉄 1m 150cm 2m 250cmの3mの階段の手すり (Size 60cm) ¥4,326 ¥4,326 配送料無料3.部屋内部や屋外の移動 など 廊下、階段、屋外などに使います。 手を滑らせて移動するため 直径32~36mm 円柱型 たとえばこんな場所 廊下、階段、屋外スロープなど 目 的 使 い 方 太さ形状 「摺る」 す 手すりの使い方は、大きくは「摺る」「握る」に分けられ、高 齢者が利用する場合は屋内外の高さが180㎜以下のまたぎ段差、かつ、手すりが設置可能な措置を講じる。 踏み段を設ける場合〕屋内外の高さが180㎜以下、屋外からのまたぎ段差が360㎜以 設置可能な措置を講じる。 (2)単純段差 (手すりが設置可能な措置を講じた場合



手摺 屋外手すりの選び方 手すりの激安通販 Toto 手摺取付 高齢者 介護



自宅でできる介護の方法 住宅改造の工夫
手すりの高さ 「高さ」とは、床面から手すり上面まどの高さのことです。 具体的には個人の状況にもよりますが、利用者本人の 大腿骨大転子の高さに2、3cm加えた高さ がつかいやすいとされています。 杖の長さ目安と同じですね。 手すり屋です! 今回は階段手すりのお話。 屋外手すりで多くみられるケースです。 階段の踏面(足を乗せる床部分)の奥行きが、 途中で変わってしまう造りの場合、 手すりはどのように曲げればいいでしょうか? 目次 1 踏面の奥行き寸法が同じ場合屋内屋外階段用手すり、2段、高齢者障害者用U字型工業用黒トランジション手すり、高さ: Cm ¥8,372 ¥8,372 配送料 ¥600 屋内屋外用ステップ手すり、屋根裏回廊ポーチガーデン用の白い工業用鉄階段手すり、設置が簡単 ¥7,7 ¥7,7 配送料 ¥400 GAPING 廊下の手すり無垢材の壁



パナソニック 手すりag 屋外用 支柱ベーシック式 高さ固定式 コーナージョイント型 Valtpbf27 Novix Com



歩行サポート手すり スムーディ 手すり 移動支援 介護用品 設備 パナソニックのエイジフリー Panasonic
ルミサポート|高輝度蓄光手すり 高輝度蓄光の廊下階段手すりです。蓄光帯と手すり本体は一体成型なので、シール等と異なり剥がれる心配がありません。「jis z 9097津波避難誘導標識システム」「jis z 9096 床面に設置する蓄光式の安全標識及び誘導ライン」に適合。室内・屋外対応。 ナカBAUHAUS 屋外用手すり。 直送品 フリーRレール 手すり棒 2m 直線 曲線用 直径34mm×25mm 屋外 手摺 手すり 玄関 取付 転倒予防 介護用品 福祉用品 diy 7,817円 送料無料 (3件) 住宅周りの段差や、玄関ポーチの段差解消用の手すり! 積水樹脂 ポーチX ロード 手すりの照明 簡易な置くだけソーラーライトが販売されています。 防犯、美観を考えれば必須のアイテムかも知れません。 手すりの高さ 標準は70~80cmほどの高さ。(腰掛けが出来る、手で寄りかかれる) 目隠しならは、180cm以上の高さ



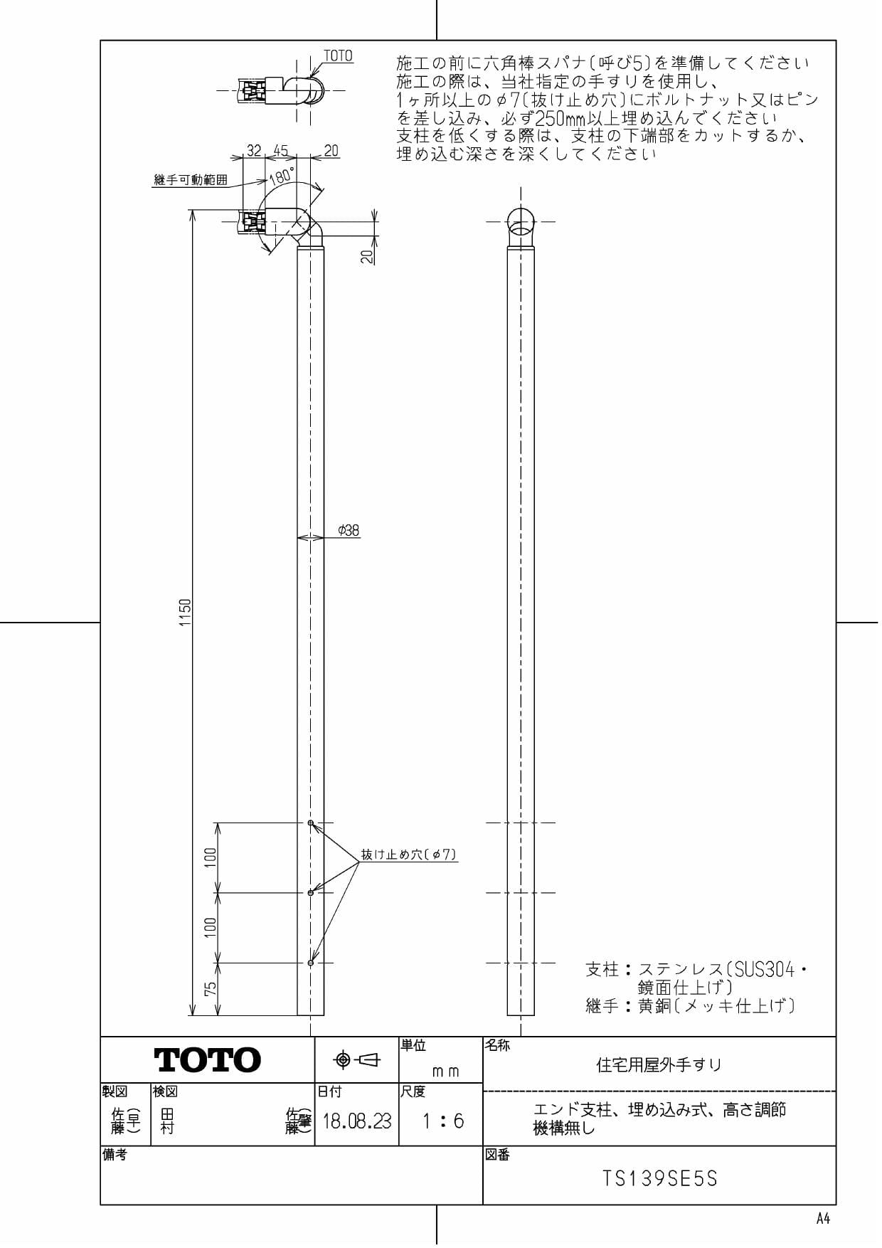
Toto Ts139se5s商品図面 施工説明書 分解図 通販 プロストア ダイレクト



楽天市場 フェンス 屋外 手すり ウッドデッキ フェンス 樹脂 手摺 ポーチ 屋外 Diy デッキ 玄関 サーファーズハウス ログ バイナルフェンス カバードポーチ ハンドレール T型 高さ1100 幅2743 2mm 30kgサイズ アーバーライフ
屋外階段かどうか の判断 の部分です。これは、手すりの高さを規定しているものではありません。階段の昇降 を安全に行うための設備を指しています。(下図4に説明しています) 従って階段の手すりの高さは75cmから85cmの間の程度と一般的で良いわけです。 住宅の階段の手摺は従来では



たちあっぷ540 両手すり Ckh01 福祉用具なら 矢崎化工kaigo Web



Toto Ts139se5s商品図面 施工説明書 分解図 通販 プロストア ダイレクト



Ts139se5s Toto 住宅用屋外手すり エンド支柱 埋め込み式 高さ調節機構無し プロストア ダイレクト 卸価格でご提供



オープニング大放出セール 屋外玄関用アプローチ手すりセット高さ角度調整タイプ Ap 70 バリアフリー 送料無料 Webショップtakigawa 新発 Ecopublicidad Com Co



3



Ts139se1s Tkf Toto その他 住宅用屋外手すり エンド支柱 アンカー固定式 Toto 高さ調節機構有り Ts139se1s 住宅用屋外手すり Wg0 住宅設備機器 Tkfront



手すりag 屋外用 住宅改修用品 介護用品 設備 パナソニックのエイジフリー Panasonic



屋外階段手すり 地元工務店で建てる木造2階建て住宅



楽天市場 手すり フェンス スロープ 外階段 階段 屋外 樹脂 ウッドデッキ 階段用てすり バイナルフェンス 角度 38 オーダーメイド ハンドレール フェンス Cl型 階段用 角度自由 kgサイズ アーバーライフ



回り階段の手すり 高さや曲げる位置はどうするの 手すり屋さんのブログ



Amazon Co Jp 耐久性のある階段手すり手すり 304ステンレス鋼の手すりセット 庭の階段の手すり 屋内屋外バルコニー用 高さ85cm Diy 工具 ガーデン



屋外 階段 手すり 実用性も兼ねた パークフェンス ストレート 設置高さ 80cm アプローチ 仕切り スロープ 段差 坂道 安全 補助 公園 花壇 手摺 玄関 入り口 介護 リフォーム 送料無料 Gulbaan Com



介護手すり取り付け位置 高さ 廊下 玄関 階段 トイレなどの室内 手すりの激安通販 Toto 手摺取付 高齢者 介護



いま知りたい 手すりのこと ナカ工業株式会社



屋外 階段 手すり 実用性も兼ねた パークフェンス カーブ 設置高さ 80cm 曲線 R2500 アプローチ 仕切りスロープ 段差 坂道 安全 補助 公園 花壇 手摺 玄関 入り口 介護 リフォーム すべての商品 ガーデン用品屋さん



介護手すり取り付け位置 高さ 廊下 玄関 階段 トイレなどの室内 手すりの激安通販 Toto 手摺取付 高齢者 介護



回り階段の手すり 高さや曲げる位置はどうするの 手すり屋さんのブログ



アプローチ用手すり 支柱スロープ対応式r 安寿 の介護用品 アロン化成



楽天市場 手すり 屋外 テラス ポーチ サーファーズハウス デッキフェンス 手摺 腐らない 白 Pvc Diy 樹脂製 樹脂フェンス バイナルフェンス ハンドレールフェンス T型 高さ900 幅2743 2mm 30kgサイズ アーバーライフ



階段 手すり おしゃれ



一般社団法人リビングアメニティ協会



楽天市場 玄関手すり シロクマ 屋外住宅用アプローチ手すり Ap 41b高さ 角度調整タイプ ベースプレート式 にわのライフコア



屋外用手すりのすすめ リフォーム 札幌 高橋建築事務所



アロン化成 安寿 アプローチ用手すり 屋外用 支柱埋め込み固定式 高さ調節なし用 535 980 535 980 介護shopサンアイyahoo 店 通販 Yahoo ショッピング



住宅の階段に 手すりをつけて安全に昇降するようにしてください



手すり取付けの基礎知識 その2 輸入 屋根材 金物資材販売 北海道 帯広



屋外手すりの激安通販 エンド支柱 埋め込み式 Toto Ts139se2s



屋外のコンクリート階段へ高さ調節式の手すりをdiyで設置しました 介護保険 住宅改修 Diyで安く施工した実例集



介護手すり取り付け位置 高さ 廊下 玄関 階段 トイレなどの室内 手すりの激安通販 Toto 手摺取付 高齢者 介護



パルトナーudフェンス シリーズ Ykk Ap株式会社



Amazon Co Jp Cfjrb 屋内屋外手すり 黒い階段手すりu字型子供無効安全階段手すりインストールが簡単 高さ35 95 Cm Size 65cm 2 1ft Diy 工具 ガーデン



3



屋外用手すりの工事ヒント9選 おすすめ高さ 玄関や階段の施工例がいっぱい



1



いま知りたい 手すりのこと ナカ工業株式会社



介護手すり取り付け位置 高さ 廊下 玄関 階段 トイレなどの室内 手すりの激安通販 Toto 手摺取付 高齢者 介護



外階段手すりの取り付け方法や高さ 太さの目安 リフォームのことなら家仲間コム



Ts139s1s 住宅用屋外手すり受支柱 アンカー固定式 高さ調節機構有り 1個 Toto 通販サイトmonotaro



バルコニーにかかる建築基準法の制限 手すり高さ 屋根の防火性能 確認申請ナビ



屋外階段タイプ アットグリップ At C E1050 S 片側手すり 工事不要置くだけ設置 屋外用手すり 介護用品の通販 販売店 品揃え日本最大級 快適空間スクリオ



Toto Ts139se5s商品図面 施工説明書 分解図 通販 プロストア ダイレクト



屋外階段手すり 取付工事 目黒区住宅改修no 043 手すりをつけようグリップグリップ 手すりの激安通販 Toto 手摺取付 高齢者 介護



最適な屋外手すりの高さとは エクステリアnews キロ本店



ヤフオク 屋外用手すりセット 埋め込み式 800 組み立て式



Amazon Co Jp 階段用 玄関用手すりセット てすり 高さ85cm 階段手すり 角度調整可能 手すりセット 高齢者の介護 子供の保護用 階段の段差設置用 屋外手すりに適しています Diy 工具 ガーデン



超目玉 シクロケア 屋外用手すりパーツ 壁付支柱用ブラケット 3165 ブロンズ 本体 奥行7 52cm 本体 高さ8cm 本体 幅5 63c 内祝い Atempletonphoto Com



最適な屋外手すりの高さとは エクステリアnews キロ本店



外階段手すりの取り付け方法や高さ 太さの目安 リフォームのことなら家仲間コム



屋外玄関用アプローチ手すり高さ角度調整タイプ Ap 71 埋込式 En Wb08u Webショップ Takigawa 通販 Yahoo ショッピング



Gリステ アプローチ手すり 製品情報 ナカ工業株式会社



超激安 シクロケア 屋外用手すりパーツ エンドエルボr 3164 F35mm ブロンズ 本体 奥行13cm 本体 高さ13 516cm 本体 全商品オープニング価格特別価格 Atempletonphoto Com



パルトナーudフェンス シリーズ Ykk Ap株式会社



アプローチ用手すり 支柱スロープ対応式r 安寿 の介護用品 アロン化成



値引きする フェンス 屋外 手すり 玄関 ポーチ カバードポーチ ウッドデッキ デッキフェンス 柵 エントランス ハンドレールフェンスcl型 高さ1000 幅00mm 15kgサイズ Sale 公式通販 Skylanceronline Com



手すり 外階段 階段 屋外 樹脂 ウッドデッキ フェンス バイナルフェンス 角度 38 柱別売り Diy ブラケット止め 簡単 腐らない 丈夫 オーダーメイド ハンドレールフェンス T型 階段用 高さ900 角度自由 34kgサイズ Mooo Apartments Com



Ts139se1r Toto 住宅用屋外手すり エンド支柱 アンカー固定式 高さ調節機構有り プロストア ダイレクト 卸価格でご提供



フェンス 屋外 手すり カリフォルニアスタイル ウッドデッキ 錆びない 腐らない 白 ポーチフェンス ハンドレールフェンスt型 高さ1100 幅00mm 22kgサイズ Hrf90t 35h65w アーバーライフ 通販 Yahoo ショッピング



Ts139s2s Kjk Toto 住宅用屋外手すり 受支柱 埋め込み式 高さ調節機構有り Wg0 Ts139s2s Kjk 通販 Yahoo ショッピング



楽天市場 ポーチフェンス 手すり ウッドデッキ フェンス 樹脂製 ベランダ エクステリア バイナルフェンス ハンドレールフェンス Cl型 高さ1000 幅18 8mm 14kgサイズ アーバーライフ



Toto Ts139se5s商品図面 施工説明書 分解図 通販 プロストア ダイレクト



2



このメーカーの屋外手すりの良いところは支柱にある 介護保険住宅改修工事専門店 株式会社テスリビト



アプローチ 屋外 手すりの選び方 住宅建材カタログ通販のファーストリフォーム



競売 Tkf Ts139s2s Toto Wg0 住宅用屋外手すり 受支柱 埋め込み式 高さ調節機構有り Ts139s2s Radiolaponedora Com



屋外のコンクリート階段へ高さ調節式の手すりをdiyで設置しました 介護保険 住宅改修 Diyで安く施工した実例集



Amazon Co Jp 階段用 滑り止め手すり てすり 高さ85cm 階段手すり 角度調整可能 手すりセット 高齢者の介護 子供の保護用 階段の段差設置用 屋外手すりに適しています Diy 工具 ガーデン



2



屋外 階段 手すり 実用性も兼ねた パークフェンス ストレート 設置高さ 80cm アプローチ 仕切り スロープ Pg 199 ガーデン用品屋さん 通販 Yahoo ショッピング



Amazon Co Jp 手摺り 階段 屋外 304ステンレス 廊下 階段手すり 角度調整可能 アプローチ手すり 立ち上がり補助 墜落防止 動作補助 高齢者用 身体障害者用 屋内屋外兼用型 高さ85cm Diy 工具 ガーデン



屋外 階段 手すり 実用性も兼ねた パークフェンス カーブ 設置高さ 80cm 曲線 R1000 アプローチ 仕切りスロープ 段差 坂道 安全 補助 公園 花壇 手摺 玄関 入り口 介護 リフォーム ガーデニング ガーデン用品屋さん



ニ 手すりの設置 ホームズ君よくわかる木構造



18 3月号 これで覚える手すりの位置 U Can 福祉住環境コーディネーター



介護手すり取り付け位置 高さ 廊下 玄関 階段 トイレなどの室内 手すりの激安通販 Toto 手摺取付 高齢者 介護



いま知りたい 手すりのこと ナカ工業株式会社



手摺 屋外手すりの選び方 手すりの激安通販 Toto 手摺取付 高齢者 介護



楽天市場 バリアフリー 屋外玄関用ポーチ手すり フリーrレールg型ベースプレート式 支柱ステンカラー 狭い玄関 手すり セット 送料無料 Webショップtakigawa



屋外玄関用アプローチ手すり高さ角度調整タイプ Ap 70 En Wb08 Webショップ Takigawa 通販 Yahoo ショッピング



住宅用屋外手すり受支柱 アンカー固定式 高さ調節機構有り Toto 建築用パイプ 通販モノタロウ Ts139s1s



21年春夏再入荷 フェンス 屋外 手すり カリフォルニアスタイル ウッドデッキ 錆びない 腐らない 白 ポーチフェンス ハンドレールフェンスt型 高さ1100 幅00mm 22kgサイズ Hrf90t 35h65w アーバーライフ 通販 Yahoo ショッピング 今だけ限定価格 Www



Ts139s2s Kjk Toto 住宅用屋外手すり 受支柱 埋め込み式 高さ調節機構有り Wg0 Ts139s2s Kjk 通販 Yahoo ショッピング



いま知りたい 手すりのこと ナカ工業株式会社



ちょうど良い手すりの高さ 一般社団法人 人間生活工学研究センター Hql データベースサイト



介護手すり取り付け位置 高さ 廊下 玄関 階段 トイレなどの室内 手すりの激安通販 Toto 手摺取付 高齢者 介護



屋外 階段 手すり 実用性も兼ねた パークフェンス ストレート 設置高さ 80cm アプローチ 仕切りスロープ 段差 坂道 安全 補助 公園 花壇 手摺 玄関 入り口 介護 リフォーム エクステリア ラティス フェンス ガーデン用品屋さん



介護手すり取り付け位置 高さ 廊下 玄関 階段 トイレなどの室内 手すりの激安通販 Toto 手摺取付 高齢者 介護



Amazon Co Jp 玄関用手すり屋内屋外階段手すり 手すり ステンレス鋼レールバー サポートキット 地上設置あり 高さ 85cm 2クロスバー Diy 工具 ガーデン



最適な屋外手すりの高さとは エクステリアnews キロ本店



バルコニーにかかる建築基準法の制限 手すり高さ 屋根の防火性能 確認申請ナビ



介護手すり取り付け位置 高さ 廊下 玄関 階段 トイレなどの室内 手すりの激安通販 Toto 手摺取付 高齢者 介護



いま知りたい 手すりのこと ナカ工業株式会社



いま知りたい 手すりのこと ナカ工業株式会社



日本全国送料無料 送料込 屋内 屋外手すり たちあっぷ2 Ckh 21 矢崎化工 特売 Www Ijqr Net
コメント
コメントを投稿